Objekt; Eigentumswohnung in Berlin
Schicke 2-Zimmer-Wohnung in Berlin  

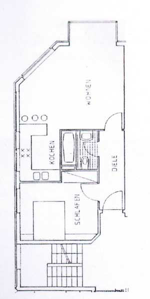
Objektbeschreibung
Diese schön geschnittene 2-Zimmer Wohnung in Berlin hat das gewisse Etwas. Idealerweise für 1 Person, jedoch auch für 2 Personen möglich.
Ausstattung
Bis auf die Küche und das modern eingerichtete Badezimmer (weiß gefliest) ist die Wohnung mit Laminat verlegt. Die Küche ist voll eingerichtet (Herd und Mikrowelle). Keller in der üblichen Größe vorhanden.
Lage
Die Wohnung liegt in Berlin Weißensee, nähe der Berliner Straße.
Sonstiges
Gerne stimmen wir mit Ihnen - bei Interesse - einen Beratungstermin (auch Sa. und So.) ab.
Wichtiges im Überblick:
Kaufpreis:     135.000,00 EUR 
Wohnfläche ca.:     50,00 m² 
Zimmer:     2,00  

Weitere Daten:
Etage:     4  
Hausgeld:     135,00 EUR 
Schlafzimmer:     2  
Badezimmer:     1  
Personenaufzug:     Ja  
Einbauküche:     Ja  
Vermietet:     Ja  
Mieteinnahmen pro Monat:     350,00 EUR 
Bezugsfrei ab:     Nach Vereinbarung!  
Provision:     5%, zzgl. gesetzl. MwSt.  

Immoscout: 42711691

Anbieter-Objekt-Nr.: 2007/17

 
 
 
 
 
next